
Villas Tisu
Exclusive real estate project in Dominican Republic





About Villas Tisu
Dominican Republic Real Estate - Villas Tisu
Sosua Real estate villas for sale, Habi Dominicana real estate service offering condos and villas for sale in sosua dominican republic
Located amidst lush landscapes, in a private, gated-community style area, these villas with their ultra-modern structure boast the ultimate in luxury, thereby offering a very modern and comfortable lifestyle.
Each villa is designed with a spacious open plan living/dining-room concept, which continues on to a covered terrace, perfect for entertaining, spending pleasant moments with your family or friends, or simply relaxing and enjoying the afternoon breeze.
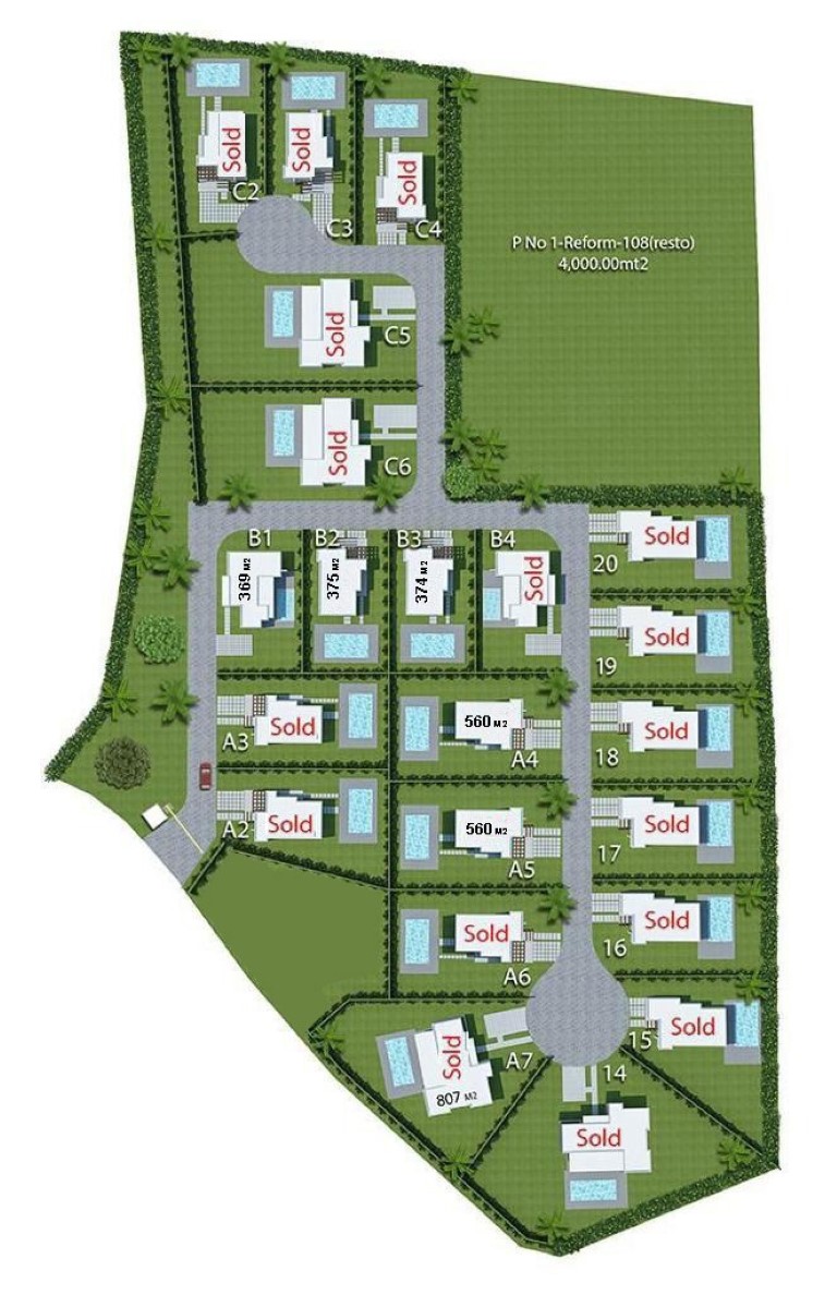
Villas Tisú real estate villas for sale is offered with 2, 3 and 4 bedrooms, for a total of 19 villas and 6 different models from which to choose, according to your preference and taste. High quality furniture adds to the rooms a feeling of modern decoration and architecture. The villa consists of a dining-room, living-room, bedrooms, bathrooms, kitchen, laundry area, terraces, pool, carport and pleasant green areas.
In Villas Tisú real estate you can choose from among the six models, which we created for you, and build the villa of your dreams.
In the Dominican Republic can also enjoy winter sports such as golf, baseball, snorkeling, diving, swimming, horseback riding. Windsurfing, kite surfing and more. Our team works 24/7 to ensure that your Dominican vacation rental on any of our villas or condos becomes the vacation of your dreams. We offer vacation short and perfect for families, group vacations or romantic getaways on the north coast of the Dominican Republic for all tastes and all pockets term. Escape Island when the vacation rental Dominican. The Dominican Republic has a lot to offer its visitors the natural areas near the Dominican accommodations are beautiful. The Dominican Republic is the perfect island getaway for couples, families or groups. Condo rental 1 bedroom luxury condos with ocean for family holidays, there is a vacation rental Dominican Republic that is perfect for you. Book your vacation rental Dominican Republic now with us.
Explore other projects
Discover more investment opportunities in Dominican Republic











